Distributor Theta-Axis Cable Folding Instructions
Parts and Materials Required
- Distributor Theta-Axis Flex Cable
- 30 cm ruler
Time Required
5 minutes
Procedure
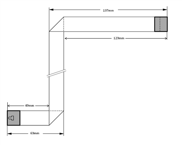
- Lay the cable out flat.

Note—When folding the flex cable, do not make a hard crease. Leave the bend slightly rounded (~1 mm end radius). If the bend is creased, the flex cable is likely to break.
Short End (Plugged into Hook PCB)
Measure 49 mm from the end of one end of the cable (and connector) and make a mark on the cable.
Fold the flex cable at a right angle, as shown in the following photo (note the orientation of the flex cable connector).





button at the top of the page to send feedback, comments, or change requests.