Distributor Hook-Axis Cable Folding Instructions
Parts and Materials Required
- Distributor Hook-Axis Flex Cable
- 30 cm ruler
Time Required
Procedure
- Lay the cable out flat.
| |
|
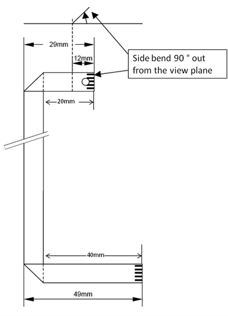
Note—When folding the flex cable, do not make a hard crease. Leave the bend slightly rounded (~1 mm end radius). If the bend is creased, the flex cable is likely to break. |
Short End, with Hole (screwed into the Distributor Hook)
Measure 20 mm from the end of the cable with the hole in it, and mark the cable.
Fold the flex cable at a right angle, as shown in the following photo (note the orientation of the yellow (or blue) side of the cable end).
On the same end of the flex cable, measure 12 mm from the edge of the flex cable, and make another mark, as shown in the following photo.
Make a 90° fold at this 30 mm mark, as shown in the following photo.
Long End (Plugged into Hook PCB)
On the opposite end of the flex cable, measure 40 mm from the end of the cable.
Fold the flex cable at a right angle, as shown in the following photo. (Note the orientation of the yellow side of the cable end.).
The cable should look like the following illustration.
Click the
button at the top of the page to send feedback, comments, or change requests.